Milano / Malpensa
18°Milano / Malpensa
18°
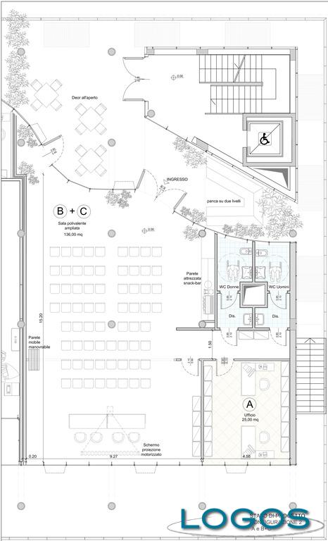
"Di Centro civico a San Paolo si parla da anni, in ogni campagna elettorale si sono spese parole e promesse a riguardo: adesso, per la prima volta, c’è, nero su bianco, il primo passo progettuale per realizzarlo". Così l’assessore alla Città bella e funzionale Marco Bianchi commenta l’approvazione da parte della giunta del progetto di fattibilità tecnico economica del Centro civico di San Paolo. La delibera, oltre alla ristrutturazione della porzione dell’edificio dell’Agenzia delle entrate, ne contempla il cambio di destinazione d’uso. L’intervento, che interessa esclusivamente la parte coperta del futuro centro civico, ha un importo di 400mila euro, finanziato con fondi propri dell’amministrazione comunale. "Il cronoprogramma prevede la redazione del progetto esecutivo, la gara per i lavori e la loro esecuzione che - ci auguriamo - possa terminare entro fine 2023 -prosegue Bianchi. Quanto alla parte esterna del Centro, sul terreno di proprietà comunale fra le vie Carducci e Siena, è nostra intenzione procedere con la stesura del progetto nel 2023 e andare alla gara e ai lavori nel 2024. Mi preme sottolineare come questo progetto nasca da un processo partecipativo realizzato da ABCittà con il quartiere nei primi mesi dell’anno. Sono state raccolte proposte e idee sulle funzioni da ospitare nel Centro, esaminate, quindi passate agli uffici per tradurle in una soluzione progettuale; soluzione che, illustrata venerdì sera nell’incontro promosso dalla Consulta territoriale Oltrestazione, ha ricevuto apprezzamenti. Si tratta di un intervento importante nel percorso di creazione di quella città policentrica che la nostra amministrazione sta portando avanti". Il progetto prevede la trasformazione in nuovo centro civico del quartiere dei 200 metri quadrati al piano terra del palazzo dell’Agenzia delle Entrate, attualmente destinati a uffici ma inutilizzati. L’intervento prevede la demolizione delle attuali partizioni realizzate con pareti mobili e nella formazione di tramezze che definiranno le nuove funzioni previste per il centro civico ossia: un ufficio per funzioni amministrative e/o organizzative, una sala polivalente e una sala riunioni. Nello specifico la separazione tra la sala polivalente e la sala riunioni dovrà essere realizzata con una parete mobile manovrabile che renderà modulabile lo spazio in relazione al pubblico da accogliere. È prevista la sostituzione dei serramenti interni ed esterni per l’adeguamento alle norme vigenti in materia di accessi e la realizzazione di una controparete isolata per separare i nuovi locali adibiti a centro civico con gli uffici dell’Agenzia delle Entrate. Il controsoffitto dovrà essere adeguato alla nuova distribuzione degli elementi impiantistici, oltre a prevedere un adeguato isolamento acustico e termico. Aspetti importanti saranno l’isolamento isolamento acustico e termico, da garantire per il miglior svolgimento delle diverse funzioni che troveranno spazio. Sarà rifunzionalizzato il blocco dei servizi igienici e realizzata una parete con cui si ricaverà uno spazio dell’attuale archivio utilizzabile dai fruitori del Centro civico come deposito di materiali e attrezzature. È previsto anche l’adeguamento degli impianti elettrici, termici, idrico-sanitari e antincendio mirato alla separazione dagli impianti esistenti e relativi all’intero edificio per rendere funzionalmente autonomo il centro. L’intervento prevede anche la riqualificazione energetica, ossia il “relamping” (sostituzione delle lampadine con sistemi LED per il risparmio energetico) e la posa di sistemi automatizzati con fotocellule per l’accensione e lo spegnimento luci. Infine saranno realizzati interventi di riqualificazione dell’area esterna, in corrispondenza del nuovo ingresso, che vedranno l’adeguamento della pavimentazione esistente e la predisposizione di nuovi arredi.
Siamo al lavoro per offrire a tutti un’informazione precisa e puntuale attraverso il nostro giornale Logos, da sempre gratuito.
La gratuità del servizio è possibile grazie agli investitori pubblicitari che si affidano alla nostra testata.
Se vuoi comunque lasciare un tuo prezioso contributo scrivi ad amministrazione [at] comunicarefuturo [dot] com
Grazie!
Invia nuovo commento