facebook telegram twitter whatsapp

Magenta

Magenta: si sistema piazza mercato

Al via i lavori di riqualificazione di piazza Mercato a Magenta, destinata anche a parcheggio tra via Matteotti e via Santa Caterina.

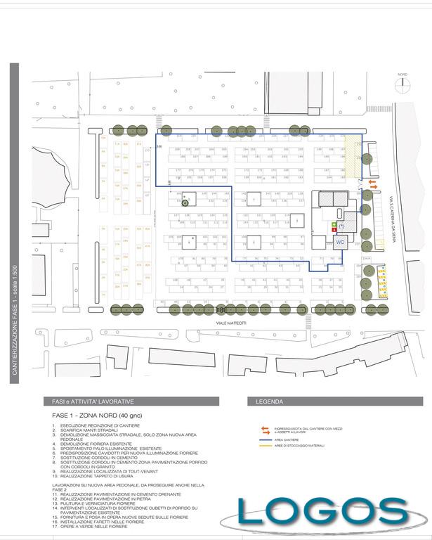
Al via i lavori di riqualificazione di piazza Mercato a Magenta, destinata anche a parcheggio tra via Matteotti e via Santa Caterina. Pertanto, da lunedì 24 giugno, è stata prevista la modifica del posizionamento delle bancarelle e della viabilità per consentire l’esecuzione della prima fase di intervento il cui termine è programmato entro la fine di settembre. “Il mercato di Magenta del lunedì rappresenta un’importante attrazione per i magentini e per tutto il territorio. L’area necessita di una riorganizzazione e riqualificazione complessiva non solo per i giorni di mercato: per questo, partendo da un contributo regionale, abbiamo trovato i fondi da bilancio con entrate in conto capitale per realizzare anche un’area ludica fruibile dai cittadini tutto l’anno“, così spiega il Vicesindaco e Assessore ai Lavori Pubblici Enzo Tenti riferendosi alla implementazione voluta dalla Amministrazione Del Gobbo di un progetto iniziale per cui Regione Lombardia aveva confermato un contributo di 200 mila euro. “Nel primo semestre dell’anno 2024, anche a seguito della conferma da parte di Regione Lombardia del suo contributo, si è proceduto con l’attuazione di un progetto che si prefigura un duplice obiettivo: da un lato la sistemazione della Piazza attraverso una ridistribuzione degli stalli mercatali al fine di migliorarne la fruibilità e l’accesso ai mezzi di soccorso; dall’altro lato la necessità di riqualificare l’area al fine di colmare un vuoto funzionale dello spazio, che per i restanti giorni della settimana rimane in parte inutilizzato“. Il quadro economico complessivo del progetto denominato “Realizzazione nuovo spazio pubblico e riqualificazione di Piazza Mercato come luogo di polarità urbana” è di 339.543,13 euro, di cui 200 mila, come detto, con contributo Legge Regionale n. 9/2020 – Interventi per la ripresa economica della Regione Lombardia, e 139.543,13 con fondi comunali. I lavori sono suddivisi in due fasi per consentire la rotazione del posizionamento delle bancarelle.

X

Preferenze per tutti i servizi

Questo sito o gli strumenti terzi da questo utilizzati si avvalgono di cookie. Se vuoi saperne di più o negare il consenso a tutti o ad alcuni cookie, consulta la cookie policy.
Abilitando l'uso dei servizi di terze parti, accetti la ricezione dei cookies e l'uso delle tecnologie analitiche necessarie al loro funzionamento.

© 2009-2026 Comunicare Futuro Srl
C.F. e P.IVA 09364120965

Mobile version

Fai pubblicità con Logosnews
Gestione cookie     Privacy